• Work
  • High School
  • University
  • Hospital
  • Medical Office Building
  • Multigenerational Home
  • Residential Loft
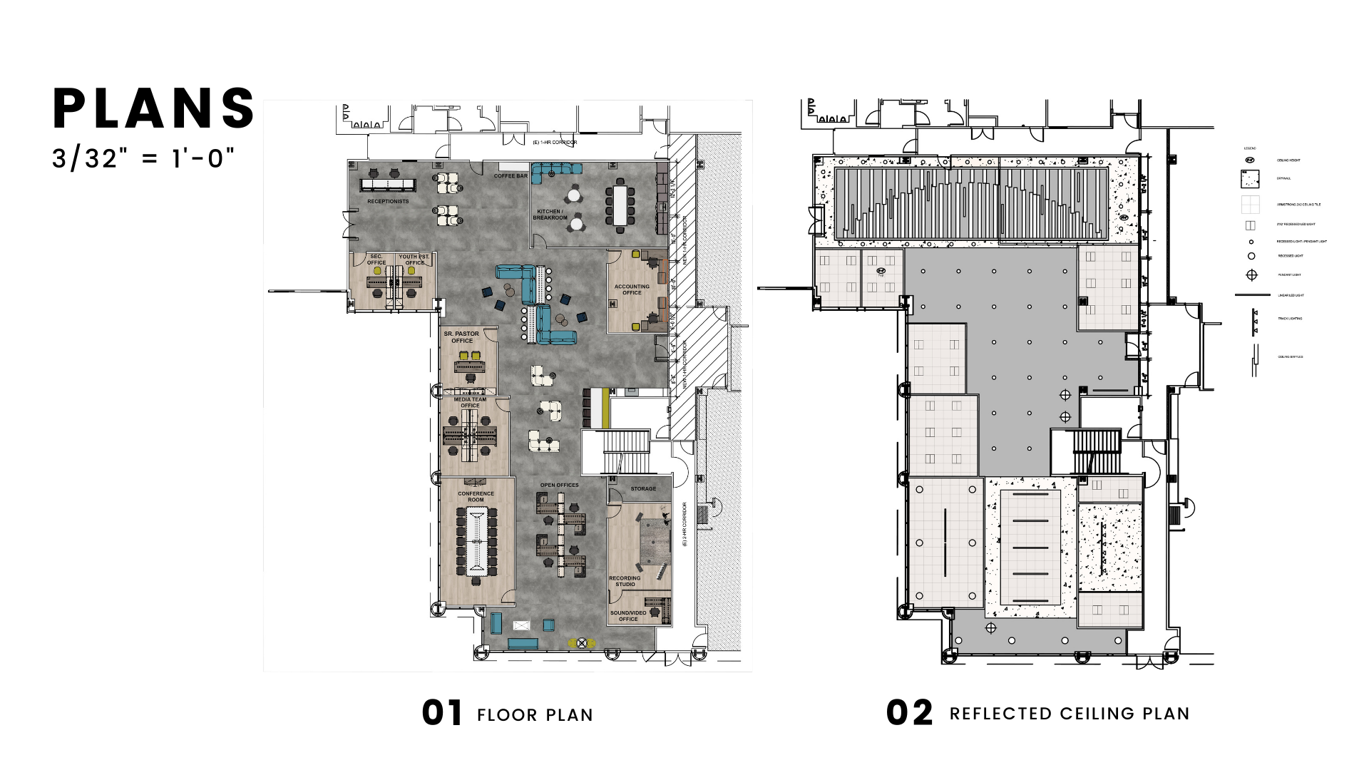
  • Church Office
About
Resume
Contact
Caroline Sutantio
  • Work
  • High School
  • University
  • Hospital
  • Medical Office Building
  • Multigenerational Home
  • Residential Loft
  • Church Office
About
Resume
Contact

Church Office

↑Back to Top
Powered by Adobe Portfolio